Villa 5+1 İzmir, Türkiye №212797
87

ID212797
€ 597 650
- EUR €
- USD $
- RUB ₽
- NOK kr
- GBP £
- TRY ₺
Property description
İzmir Güzelbahçe'de Yatay Mimarinin Hakim Olduğu Bölgede Deniz Manzaralı VillalarGüzelbahçe, İzmir'in sahil şeridinde yer alan huzur dolu lokasyonlarından birisidir. Konum olarak Çeşme ve Urla'ya yakın bir bölgede yer almasının yanı sıra, aynı zamanda şehir merkezine yakınlığı ile de dikkat çekmektedir. Sakin ve elit insanların tercih ettiği Güzelbahçe'de yapılar genellikle müstakil ve az katlı olarak yoğunluk göstermektedir. Sahili, yeşil alanları, havası, meşhur balık ve et restoranları ile İzmir'in güzide ilçelerinden birisidir. Güzelbahçe ayrıca İzmir ilinin eğitim merkezi konumundadır.
İzmir'de satılık villalar, denize ilk parselde yer almaktadır. Müstakil ve yarı müstakil tipte villaların bulunduğu proje denize 20 metre, markete 250 m, sahildeki restoranlara 300 m, denize ve yat limanına 1,8 km uzaklıktadır. Mavi bayraklı plaja 3,5 km, Adnan Menderes Havalimanı’na ise 30 km mesafededir.
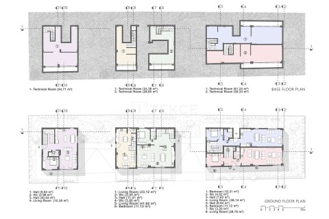
Proje, 960 m² arsa üzerine inşa edilmiş 4 adet yarı müstakil ve 1 adet müstakil villadan oluşmaktadır.
Her villada açık otopark, çağdaş mimari iç ve dış detaylar yer almaktadır. Yaz-kış oturuma uygun olan villalar, Güzelbahçe'nin her mevsimin tadını çıkarmaya olanak sağlamaktadır. Sahil yürüyüş alanları ve bölgedeki sosyal olanaklarla iç içe olmanın farkını bu projede yaşayabilirsiniz.
Villalarda açık plan mutfak, geniş salon, yatak odaları, banyolar, balkon, açık otopark ve bahçe bulunmaktadır. Villalar üst düzey mimari tasarıma sahiptir ve akıllı ev yönetim sistemi, kaliteli lake banyo ve mutfak dolapları, kaliteli marka armatürler, ankastre set, duş kabini, ısı yalıtımı ve alüminyum doğrama pencereler gibi özelliklerle donatılmıştır. ADB-00177
Villalarda açık plan mutfak, geniş salon, yatak odaları, banyolar, balkon, açık otopark ve bahçe bulunmaktadır. Villalar üst düzey mimari tasarıma sahiptir ve akıllı ev yönetim sistemi, kaliteli lake banyo ve mutfak dolapları, kaliteli marka armatürler, ankastre set, duş kabini, ısı yalıtımı ve alüminyum doğrama pencereler gibi özelliklerle donatılmıştır. ADB-00177
Sosyal alanlar
- Hava limanına yakın
Daire içi özellikleri
- 'Akıllı ev' sistemi
- Panjur montajı için gereken hazırlık
- Uydu TV
- Klimalar
- Eşyalı
- Serbest plan - mutfak
Bina İçi Özellikleri
- Restoran
- Doğal gaz ısıtması
- Çamaşırhane
- Kiler
- Türk hamamı
- Alışveriş merkezi
Bina Dışı Özellikleri
- Otopark
- Duş
- Bahçe
Satıcıyla iletişime geç
Şehirİzmir
TipVilla
Oda sayısı5+1
Brüt Alan230 metrekare
Teslim tarihiIV çeyrek, 2025
Fiyat
- Fiyat
- metre kare fiyatı
€ 597 650
- EUR €
- USD $
- RUB ₽
- NOK kr
- GBP £
- TRY ₺
Benzer projeler
-
Oda sayısı: 7Yatak odası: 5Banyo: 2Brüt Alan: 230 metrekare
-
Oda sayısı: 6Yatak odası: 5Brüt Alan: 230 metrekareDenize Yakınlık: 15 km
-
Oda sayısı: 6Yatak odası: 5Banyo: 3Brüt Alan: 230 metrekare
-
Oda sayısı: 4Brüt Alan: 230 metrekareЭта вилла — отличный вариант для тех, кто ищет просторный и удобный дом недалеко от центра Кирении. Общая площадь составляет 550 м², из них 230 м² — жилая. В доме три этажа, на крыше — большая терраса с крытым выходом, где можно обустроить зону отдыха или барбекю. Три спальни, включая мастер-спальню с собственной ванной комнатой, гардеробной и выходом на террасу. Также предусмотрены постирочная, кладовая под лестницей и инфраструктура под установку камина. На участке есть бассейн, зелёный сад и парковка. Входит в небольшой комплекс из шести вилл, каждая из которых ограждена собственным забором, что обеспечивает дополнительную приватность. Расположение удобное: поблизости вся городская инфраструктура, магазины, рестораны, а до центра Кирении можно добраться за считаные минуты. Дом продаётся с мебелью и техникой, но также возможна покупка без мебели — дешевле. Виллы с таким набором преимуществ встречаются нечасто: собственная территория, бассейн, просторная крыша и продуманная планировка делают этот вариант по-настоящему удачным как для семьи, которая ищет комфортный дом для жизни у моря, так и для инвестора, рассчитывающего на высокий арендный потенциал. Близко к морю, 5-звездочным отелям, казино, частным больницам, школам, ресторанам и местам общего пользования. 5 минутах езды от центра Кирении 15 минут езды до Гольф Клуба Korenium 30 минут езды до Никосии 45 минут езды до аэропорта Эрджан 90 минут езды до аэропорта Ларнака 60 минут езды до Фамагусты Daha fazla





































